维小康 | 时光隽永 诗意栖居

▲ 项目鸟瞰图
在北京的顺义区,一座以“时光”为名的建筑群正悄然生长。当代时光里二期项目不仅延续了一期的设计基因,更以“城市开放·居民共享·生态居住”为核心,打造了一座融合自然、人文与未来的高端养老社区。在这里,建筑不再是冰冷的空间容器,而是承载着时光温度的生活剧场,为长者编织出一幅悠然自得的生活图景。它流动,让所经过的脚印生根。春天从屋顶的采光天窗滴落,夏夜沿着活力街的灯火蜿蜒,秋阳在协护公寓的走廊小憩,冬雪静静爬上庭院墙面的诗句,时光在此被装订成册。
'01
城市近郊的诗意栖居
Poetic Dwelling in the Suburbs
项目择址顺义区,毗邻首都国际机场,距市中心仅20公里,既避开了城市的喧嚣,又享有便捷的交通网络。周边15公里内聚集多家三甲医院,其中北医三院首都机场院区仅6.2公里,医疗资源触手可及。虽然区域内其余生活配套不足,但反成项目契机——当代时光里二期以“自我完善”为使命,通过活力街、社群空间与生态公园的构建,将社区打造成一座自给自足的“微型城市”。

▲ 项目区位图

▲ 总平面图
通过“城市开放”理念打破封闭性,以流动的景观轴线串联公共空间;通过“空间品质”重塑生态界面,以超大尺度花园和下沉庭院营造沉浸式自然体验;更以“当代基因”赋予建筑现代美学与功能弹性,回应长者对品质生活的深层需求——即社会生活的延续、社群生活的丰富、社区生活的完善。
'02
社会 - 社区 - 社群
Society - Community - Social Group

▲ 项目整体定位

'03
时光流转的空间叙事
Spatiotemporal Narrative Flow
1. 方案生成:理性的生活融入
规划设计结合一期原有的规划布局打造城市广场以及内部的超大尺度景观花园。进而划分建筑体量,满足合理的建筑功能并形成内外空间的连续性。最后形成从外到内完整的生活空间属性,营造惬意的全景生活氛围。

通过内向型的超大尺度庭院,以及由外向配套设施和内部专用配套设施构成的立体活力街巷,营造了兼具社会公共生活、社区私密生活和社群圈层生活的融合场景。

▲ 规划总体功能分布

▲ 首层概念总平面图

▲ 总体空间布局

▲场地整体剖面
2. 活力街:社会生活的张力
项目首层规划了一条“活力街”,它不仅是社区对外的名片,更是长者与社会对话的窗口。街道两侧布局特色餐饮、茶馆、多功能厅等业态,将日常生活与城市资源无缝衔接。通过打造社会生活空间,鼓励长者在此分享智慧、发起活动,让退休生活延续社会价值。这种开放式的街区规划,既降低了运营成本,又通过商业收益反哺社区,形成可持续的运营生态闭环。最重要的是,为老人们的生活创造了一种能够延续社会生活和角色的张力。

▲ 活力街效果图

▲ 活力街对外公共功能空间

▲活力街一层平面图
主入口空间成为整个活力街的空间导引标识,在商街入口处打造标志性城市会客厅和时光博物馆,兼具文化展览、社区服务、商业活动等多重功能,作为社区对外输出价值主张的“明信片”。

▲ 主入口人视图

▲ 城市会客厅平面图

▲ 时光博物馆平面
为了营造更具吸引力的空间视觉感受,与室内和景观团队共同配合,在入口处营造丰富的空间体验,从主入口、城市会客厅、时光博物馆,架空层、到内广场层层推进空间叙事。

▲ 城市会客厅景观对景

▲ 架空区

▲ 内广场
3. 大公园:社区生活的调性
社区生活如同一个大公园,生活服务触手可及,时光慢慢流淌就是这个社区的生活调性。居民们可以在这里悠闲地散步、喝茶,享受惬意的时光。同时,这里也汇聚了志同道合的邻居,大家因共同的兴趣相聚,一起参与各种活动,分享生活的乐趣,共同创造美好的回忆。

▲ 景观总平面图

▲ 中央庭院鸟瞰图

▲ 室外种植区

▲ 儿童活动区

▲室外休闲区

▲ 室外漫步区
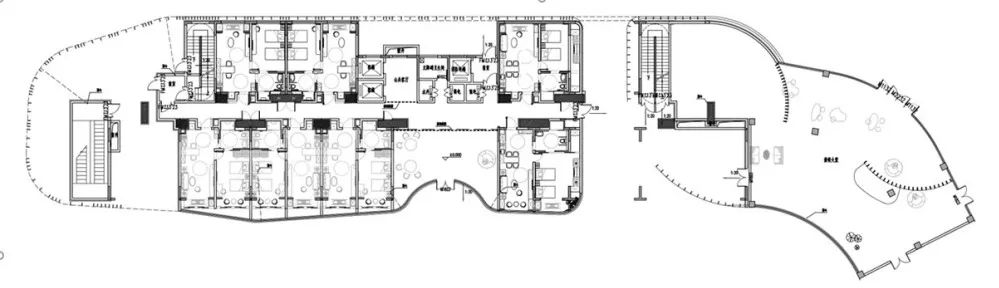
标准的居住单元公共空间保证了项目后续便捷的后勤服务动线以及长辈舒适的归家感受。每个居室确保了良好的通风和采光条件。居室内的空间规划充分考虑了老年人的生活习惯,方便居民的日常起居。同时项目还注重私密性与公共空间的平衡,让居民既能享受个人的宁静时光,又能随时融入社区的集体生活。通过首层大堂、屋顶花园、室外露台的打造使每栋楼获得不同维度的公共活动空间,满足入住长辈多样的公共活动需求。

▲ 5#楼 一层平面

▲ 5#楼 二层平面

▲ 屋顶休闲区

▲ 屋顶活动区
通过标准化的交通核布置,不同形式的开窗比例关系研究,保证立面开窗的精细化布置和完整的立面韵律关系。

▲ 交通核开窗模数分析

▲ 立面分隔比例

▲ 墙身模数控制
4. 朋友圈:社群生活的黏性
一二期庭院通过流动形态相互贯通,超大尺度的中央花园、下沉庭院与屋顶露台形成立体景观体系。引入“建筑景观一体化”思维,模糊室内外界限,让阳光、绿意与清风自然渗透。养老社区的本质是“人的联结”。项目以“朋友圈—社群生活”为纽带,规划书法教室、声乐厅、瑜伽教室等多元空间,鼓励长者从“被服务者”转变为“生活共创者”。社群运营借鉴“共享自治”理念,通过多功能展厅、公共教室等模块,让长者在兴趣社群中重拾归属感。
在悠然的时光里,共同沉淀人生芳华,“咱们楼下见,天天见!”——创造着社群生活的黏性。

▲ 内庭院效果图
护理花园、廊下健身、温室花房等活动场地,不仅为居民提供了休闲娱乐的去处,还兼顾了康复和保健功能,有助于提升居民的生活质量。一亩菜园、阳光花房、主题景观等特色区域,让居民在亲近自然的同时,也能体验到耕种和园艺的乐趣。

▲ 内部公共活动功能空间

▲ 地下一层平面
为了保证地下公共活动空间的舒适使用,充分利用下沉庭院空间满足项目的采光、通行需求,打造丰富的空间体验。从建筑、景观和室内维度协同设计,打造一体化设计的庭院效果。

▲ 楼座下沉庭院

▲ 围绕下沉庭院公共空间布置

▲ 中央下沉中庭景观平面

▲ 下沉庭院草坪

▲ 下沉庭院入口

▲ 中央下沉中庭内部
餐厅空间是社区中最重要的公共活动空间,为了提供舒适的用餐环境,餐厅位置选址社区内日照条件最佳、室内景观最佳的区域,并通过与景观团队,室内团队共同配合,不仅保证充足的就餐空间、不同的用餐方式选择、便捷的服务动线,同时更打造了惬意的用餐感受。

▲ 餐厅室内平面

▲ 餐厅室外景观

▲ 餐厅外部人视图
社区内部创意性地营造了一处漂浮的空中花园,外部作为社区的精神堡垒同时也是社区内部长辈的精神冥想空间。

▲ 空中花园效果图

▲ 空中花园剖面
'04
让时光沉淀为生命的礼物
Let Time Precipitate into Life’s Treasured Gifts
当代时光里二期,是一座为时光赋形的建筑。它用开放的空间消弭年龄的边界,用流动的景观唤醒生命的活力,用细腻的设计托举晚年的尊严。在这里,长者的生活不再是“养老”,而是“享老”——在花园中漫步,在社群中发光,在时光里沉淀人生的芳华。
技术图纸

▲ 3#楼 南立面

▲ 3#楼 北立面

▲ 6#楼 北立面

▲ 6#楼 南立面

▲ 5#楼 西立面

▲ 6#、7#楼 西立面

▲ 6#、7#楼 东立面

▲ 典型墙身详图一

▲ 典型墙身详图二

▲ 地下一层平面图

▲ 3#楼 首层平面

▲ 3#楼 标准层平面

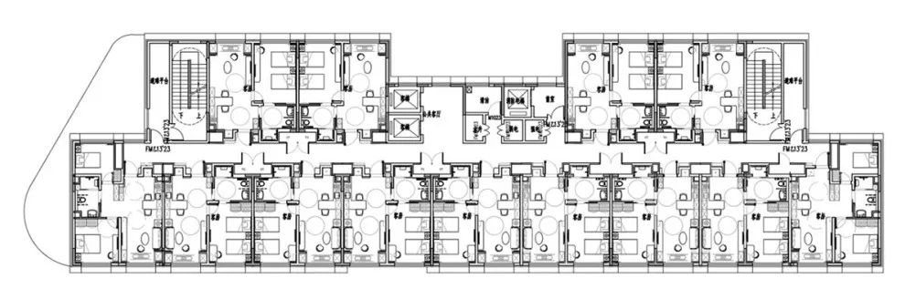
▲ 5#楼 一层平面

▲ 5#楼 标准层平面

▲ 6#楼 一层平面

'05
后 记
Afterword
当代·时光里项目,如今已悄然易名为太平·玉兰人家。疫情的浪潮翻涌过后,养老行业诸多投资者或主动、或被动地纷纷退场。而这一设计,宛如时代沧桑变迁的缄默见证者。项目的二期,也再难循着我们最初的绮梦迤逦前行。
对于当初满怀热忱、殚精竭虑的设计团队而言,这无疑是一场注定的遗憾。
但就像许巍在《时光里》所唱:“在不知不觉的一瞬间,又想起你,你是记忆中最美的春天”。或许,未竟的设计都是时光留给未来的散文诗。于是我们又想起了她,并记录留存。
那些未能浇筑的混凝土,将在岁月的长河中幻化成记忆的厚重年轮,于废弃的模型里,绽放出一千零一种玉兰的梦幻绮丽。设计者的遗憾,仿若月光洒在湖面,而建筑,远比我们更具智慧——有些春天,唯有活在歌谣里,方能永葆青春的蓬勃与鲜活。
设计团队
设计主持人:邸 威
建筑设计: 刘文明、刘艺婷、谢梦莹
刘婉秋、王梦伟
结构设计: 欧阳照
给排水设计:谢丽爽
暖通设计: 马 超
电气设计: 华显阳
室内设计: 杰恩设计
景观设计: 中外园林

邸 威
维拓设计副总建筑师、国家高级建筑师
一院副院长、康养产业产品线总经理
中国老年学和老年医学学会标准化委员会理事
北京工程勘察设计行业协会康养产业分会秘书长
北京土木建筑学会行业专家库专家

刘文明
国家一级注册建筑师、高级工程师
康养产业产品线副总经理
中国老年学和老年医学学会标准化委员会青年委员
中国建筑学会适老性建筑专业委员会委员
1A1 建筑所室主任

刘艺婷
高级工程师
康养产业产品事业部技术总监、项目经理
1A1 建筑所 主创建筑师

谢梦莹
1A1 建筑所工程师 专业负责人
















发表评论